Verkocht:Inkoperhof 18, 2231 HC Rijnsburg - Foto
Verkocht
+35

Inkoperhof 18 2231 HC Rijnsburg

  • Woonhuis
  • 6 kamers
  • 5 slaapkamers
  • 1 badkamers
  • Bouwjaar 2019
  • 160 m² perceeloppervlakte
  • 162 m² gebruiksoppervlakte
  • A Energielabel A

Beschrijving

Ruime eengezinswoning met vloerverwarming en vloerkoeling

Bent u op zoek naar een ruime woning met moderne voorzieningen en een zonnige tuin op het westen? Dan is Inkoperhof 18 een woning die u zeker niet mag missen. Met een woonoppervlakte van ca. 162 m² en een praktische indeling biedt deze woning volop ruimte voor het hele gezin.

Indeling woning

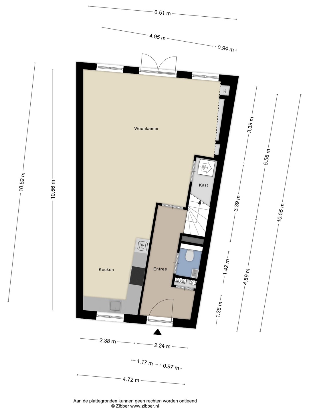
De hal geeft toegang tot het toilet, de trap naar boven en ruimte voor een garderobe. De woonkamer is verrassend ruim en licht en beschikt over een wand met inbouw nissen. Deze nissen bieden de mogelijkheid om bijvoorbeeld een televisie netjes weg te werken of een elektrische haard te plaatsen, waardoor u eenvoudig sfeer en comfort kunt creëren.

Aan de voorzijde van de woning bevindt zich de keuken. Deze is voorzien van moderne inbouwapparatuur en een stijlvol werkblad, met voldoende ruimte om een gezellige eethoek te realiseren.

Eerste verdieping

Op de eerste verdieping zijn twee ruime slaapkamers aanwezig, beide groot genoeg om als master bedroom te dienen. Daarnaast is er een derde kamer die geschikt is als kinderkamer of werkplek. De badkamer is royaal opgezet en voorzien van een ligbad, inloopdouche, dubbele wastafel en tweede toilet.

Tweede verdieping

De tweede verdieping biedt nog meer ruimte met twee extra kamers. Ook is hier een aparte technische ruimte aanwezig met aansluitingen voor de wasmachine, droger en de wtw-installatie.

Ligging en omgeving
De woning bevindt zich in een rustige woonwijk. Winkels, scholen en openbaar vervoer zijn op loopafstand, en uitvalswegen richting Leiden, Den Haag en Amsterdam zijn eenvoudig bereikbaar.

Extra faciliteiten
Exclusief voor bewoners van De Bloem is een luxe wellness geopend. De wellness bestaat uit een zwembad met terras, Finse sauna, Turks stoombad en fitness. In het naastgelegen gebouw Calla is een kapsalon, beautysalon en pedicure aanwezig, waar ook de overige bewoners van De Bloem welkom zijn.

Bijzonderheden

- Voor alle eengezinswoningen in Bougainville is een parkeerplaats op eigen terrein beschikbaar. Een extra parkeerplaats kunt u optioneel huren op het buitenterrein aan de voorzijde van uw woning tegen een huurprijs van € 70,- per maand excl. € 6,- servicekosten (prijspeil 1 januari 2025).
- Gebruik van de Wellness € 23,53 per huishouden (prijspeil 1 januari 2025);
- De woning is voorzien van een warmtepompinstallatie en daarom volledig gasloos te verwarmen. De woning wordt via de vloeren verwarmd en gekoeld. Dat betekent dat u geen radiatoren zult aantreffen in de woning (met uitzondering van de elektrische radiator als bijverwarming in de badkamer). Voor de huur van de warmtepomp wordt een servicecontract met Enera Services afgesloten met een verplichting van € 167,- per maand (prijspeil 2025);

Bijzondere bepalingen t.a.v. de verkoop:
- Verkoper heeft de woning nooit zelf bewoond en daarom zal er een ‘niet-zelfbewoningsclausule’ aan de koopovereenkomst worden toegevoegd.

Levering zal plaatsvinden bij TeekensKarstens notarissen in Leiden

Heeft u interesse in deze woning? Neem dan contact met ons op zodat we een bezichtiging kunnen inplannen.

Kaart

Kenmerken

Overdracht

Referentienummer
00424
Vraagprijs
€ 735.000,- k.k.
Status
Verkocht
Aanvaarding
In overleg
Aangeboden sinds
Donderdag 2 oktober 2025
Laatste wijziging
Woensdag 29 oktober 2025

Bouw

Type object
Woonhuis, eengezinswoning, tussenwoning
Soort bouw
Bestaande bouw
Bouwperiode
2019

Oppervlaktes en inhoud

Perceeloppervlakte
160 m²
Woonoppervlakte
162 m²
Inhoud
453 m³
Oppervlakte externe bergruimte
7 m²

Indeling

Aantal bouwlagen
3
Aantal kamers
6 (waarvan 5 slaapkamers)
Aantal badkamers
1 (en 1 apart toilet)

Locatie

Ligging
Dichtbij openbaar vervoer
In woonwijk
Nabij school
Nabij winkelcentrum

Tuin

Type
Achtertuin
Hoofdtuin
Ja
Heeft een achterom
Ja
Staat
Dient nog te worden aangelegd.

Energieverbruik

Energielabel
A

Uitrusting

Badkamervoorzieningen
Dubbele wastafel
Ligbad
Toilet
Tuin aanwezig
Ja

Kadastrale gegevens

Kadastrale aanduiding
Katwijk C 1
Perceeloppervlakte
160 m²
Omvang
Geheel perceel
Eigendomsituatie
Eigen grond