Onder optie:Venneperweg 581H, 2152 CC Nieuw-Vennep - Foto
Onder optie
+5

Venneperweg 581H 2152 CC Nieuw-Vennep € 645.000,- v.o.n.

  • Woonhuis
  • 4 kamers
  • 3 slaapkamers
  • 1 badkamers
  • Bouwjaar 2025
  • 116 m² perceeloppervlakte
  • 117 m² gebruiksoppervlakte
  • A+++ Energielabel A+++

Beschrijving

Unieke kans: nieuwbouwwoning beschikbaar in Hof van Vennip!

De woning wordt gebouwd In het hart van Nieuw-Vennep in een moderne kleinschalige woonwijk waar comfort, ruimte en een fijne leefomgeving samenkomen.

In totaal worden er 17 prachtige woningen gerealiseerd, met een woonoppervlakte van ca. 114 m² tot 120 m² en een perceeloppervlakte van ca. 104 m² tot 161 m².

*** De bouw is gestart ***

Deze woning van ca. 117 m2 heeft o.a. de volgende kenmerken:
- Eigen warmtepomp met vloerverwarming -en koeling
- Rustig gelegen aan een hofje met parkeervoorzieningen en speelgelegenheid voor de deur
- Op loopafstand van winkelcentra en overige belangrijke voorzieningen
- Openbaar vervoer naar Schiphol en Amsterdam op loopafstand

Indeling woning:
De woning is rustig gelegen aan het hofje met parkeervoorzieningen en een speelplek voor kinderen. Een fijne, veilige omgeving waar gezinnen zich snel thuis voelen.

Via de voortuin kom je bij de entree van de woning. In de hal vind je een meterkast, een apart toilet en de trap naar de eerste verdieping. Vanuit hier stap je de royale living binnen, waar ruimte is voor een grote eettafel om gezellig aan te dineren en een ruim opgezet zitgedeelte voor knusse avonden. De grote ramen aan de tuinzijde zorgen voor veel natuurlijk licht en bieden een mooi uitzicht op de achtertuin.

Aan de voorzijde van de woning bevindt zich de open keuken, die door de grote ramen veel natuurlijk licht ontvangt. Dankzij de open verbinding met de woonkamer blijf je tijdens het koken altijd in contact met familie en vrienden, wat zorgt voor een gezellig en uitnodigende sfeer. In de trapkast vind je de warmtepomp die onder andere zorgt voor een koele woning in de zomer en warmte in de winter.

Op de eerste verdieping vind je een ruime badkamer met inloopdouche, wastafel en toilet. Daarnaast zijn er drie slaapkamers, waaronder een royale slaapkamer met veel natuurlijk lichtinval en een prachtig uitzicht op de tuin en de groene omgeving.

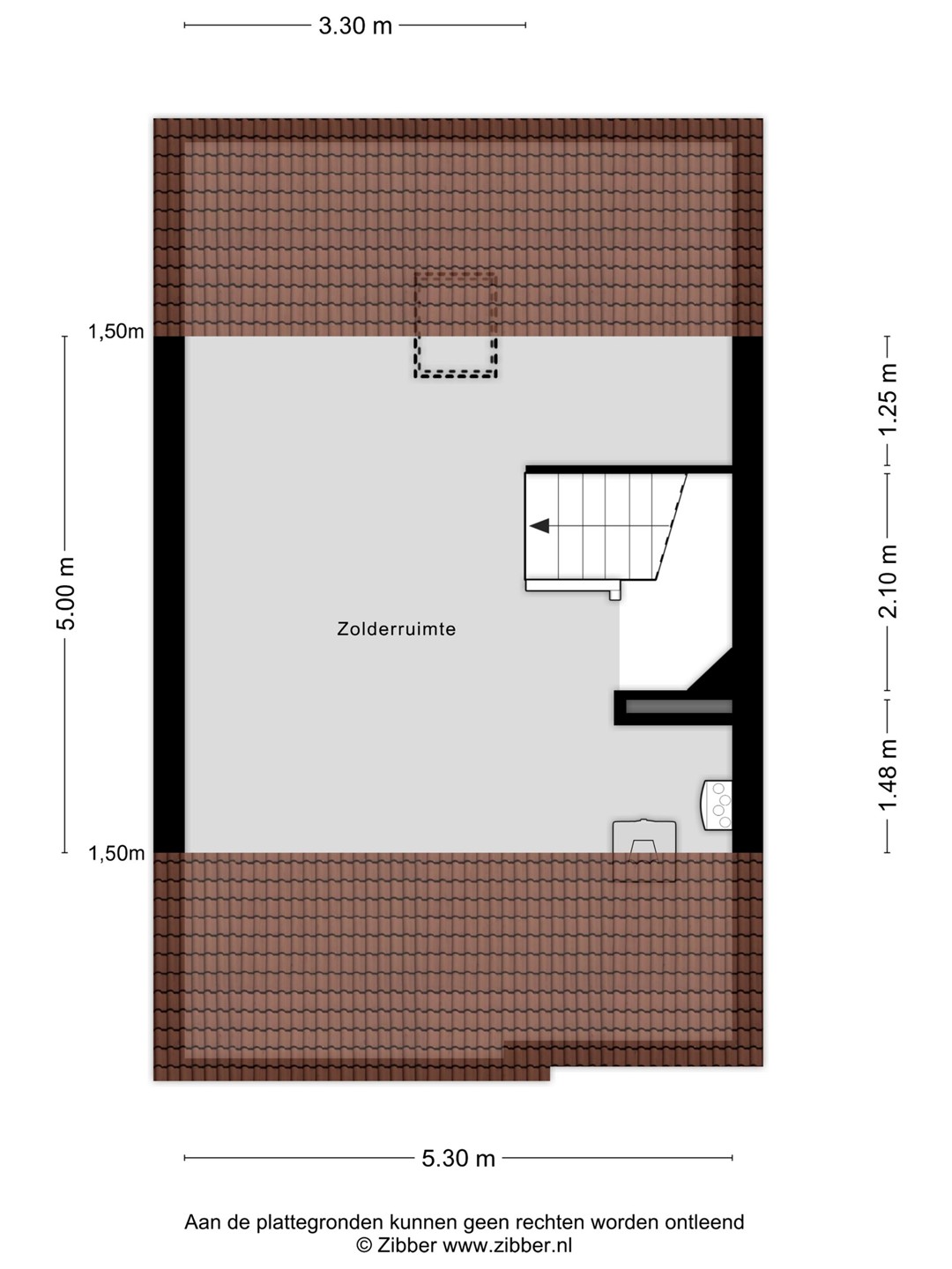
De zolderverdieping is een flexibele ruimte die naar wens kan worden ingericht, bijvoorbeeld met extra slaapkamers of een werkruimte. Ook bevinden zich hier de aansluitingen voor de wasmachine en droger.

De tuin is gelegen op het zuidoosten, waardoor je vanaf 's ochtends al heerlijk van de eerste zonnestralen kunt genieten. In de tuin staat een berging en via een achterom heb je eenvoudig toegang tot de tuin.

Let op: Omdat de bouwwerkzaamheden reeds zijn gestart en de keuzes voor het meer- en minderwerk definitief zijn vastgelegd, dient rekening te worden gehouden met bijkomende kosten voor verplicht meerwerk van ca. € 43.175,-.

Hof van Vennip
Bij Hof van Vennip heb je de keuze uit woningen met een levendig uitzicht op de Venneperweg of juist de rustige ligging aan het hofje. Elke woning beschikt over een eigen tuin, ideaal om in alle privacy van het buitenleven te genieten. Vier van de woningen hebben zelfs een eigen parkeerplaats, en daarnaast zijn er genoeg parkeerplekken beschikbaar in het hofje.

De woningen zijn ontworpen met oog voor luxe en duurzaamheid. Hier woon je comfortabel en milieubewust, met alle voorzieningen binnen handbereik.

Hof van Vennip ligt in een kindvriendelijke buurt, op loopafstand van winkelcentrum De Symfonie, sportvelden en diverse speeltuintjes. Bovendien ben je dankzij de gunstige ligging zo op Schiphol, in Amsterdam of Haarlem.

Wonen in Hof van Vennip betekent kiezen voor ruimte, comfort en een plek waar je je meteen thuis voelt. Mis deze kans niet!

Kaart

Kenmerken

Overdracht

Referentienummer
00468
Vraagprijs
€ 645.000,- v.o.n.
Inrichting
Niet gestoffeerd
Inrichting
Niet gemeubileerd
Status
Onder optie
Aanvaarding
In overleg
Aangeboden sinds
Dinsdag 6 januari 2026
Laatste wijziging
Dinsdag 13 januari 2026

Bouw

Type object
Woonhuis, eengezinswoning, tussenwoning
Soort bouw
Nieuwbouw
Bouwperiode
2025
Isolatievormen
Volledig geïsoleerd

Oppervlaktes en inhoud

Perceeloppervlakte
116 m²
Woonoppervlakte
117 m²
Inhoud
351 m³
Oppervlakte gebouwgebonden buitenruimte
5 m²

Indeling

Aantal bouwlagen
3
Aantal kamers
4 (waarvan 3 slaapkamers)
Aantal badkamers
1 (en 1 apart toilet)

Tuin

Type
Achtertuin

Energieverbruik

Energielabel
A+++

Uitrusting

Verwarmingssysteem
Vloerverwarming (gedeeltelijk)
Warmtepomp
Warmterecuperatiesysteem
Badkamervoorzieningen
Toilet
Glasvezelaansluiting aanwezig
Ja
Tuin aanwezig
Ja
Heeft schuur/berging
Ja
Heeft zonnepanelen
Ja

Kadastrale gegevens

Kadastrale aanduiding
Haarlemmermeer C 3976

Media

Plattegronden