Nieuw in verkoop:Mangoweg 265, 2321 HZ Leiden - Foto
Nieuw in verkoop
+26

Mangoweg 265 2321 HZ Leiden € 819.000,- k.k.

  • Appartement
  • 3 kamers
  • 2 slaapkamers
  • 1 badkamers
  • Bouwjaar 2023
  • 128 m² gebruiksoppervlakte
  • A+++ Energielabel A+++

Beschrijving

Op de elfde etage van het in 2023 gebouwde wooncomplex De Ananas ligt dit hoogwaardige appartement met een vrij uitzicht over Leiden. De woning combineert een ruime, lichte indeling met moderne afwerking en duurzame installaties waardoor het een comfortabel en toekomstbestendig thuis biedt. Grote raampartijen zorgen voor een overvloed aan daglicht en benadrukken het open karakter van de woonruimte.

Bij binnenkomst van het gebouw ervaart u direct een gevoel van exclusiviteit, dankzij de strakke en verzorgde uitstraling van de entree. De toegang is mogelijk via de centrale hal met een video-intercominstallatie maar ook via de parkeergarage wat extra gemak biedt. Vanuit de centrale hal heeft u toegang tot de liften en het trappenhuis, waarmee u eenvoudig de elfde verdieping bereikt.

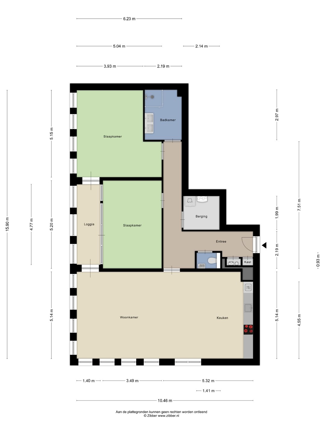
Via de ruime hal betreedt u het appartement waar een apart toilet aanwezig is. Het appartement beschikt over twee ruime slaapkamers, een badkamer en een praktische wasruimte. De keuken is eigentijds vormgegeven en voorzien van hoogwaardige inbouwapparatuur en royale werkruimte geschikt voor zowel dagelijks gebruik als uitgebreid koken. Voor optimaal comfort is het appartement uitgerust met vloerverwarming en -koeling die het binnenklimaat gelijkmatig en aangenaam houden zonder storende radiatoren. Het hoge energielabel A+++ onderstreept de duurzame en energiezuinige uitvoering van de woning. Daarnaast is er een loggia, ideaal om in alle rust van buitenlucht en uitzicht te genieten.

De ligging biedt directe toegang tot het historische centrum van Leiden, terwijl belangrijke uitvalswegen richting Den Haag en Amsterdam goed bereikbaar zijn.

Bijzonderheden

- Bouwjaar: 2023
- Woonoppervlakte van circa 123 m²
- Duurzaam appartement met energielabel A+++
- Warmtepomp voor verwarming en koeling (huur van de warmtepomp circa €120 per maand, exclusief verbruik)
- 2 zeer ruime slaapkamers
- Lift aanwezig
- Parkeerplaats te huur in de ondergelegen parkeergarage voor €95 per maand
- Gemeenschappelijke, groene binnentuin met speel- en zitgelegenheden
- Volledig gasloos
- Actieve en gezonde Vereniging van Eigenaars (VvE) met een bijdrage van circa €160 per maand

Bijzondere verkoopvoorwaarden:
- Verkoper heeft nooit in de woning gewoond; daarom wordt een “niet-zelfbewoningsclausule” opgenomen in de koopovereenkomst
- De levering van het appartement zal plaatsvinden bij TK Notarissen in Leiden

Kaart

Kenmerken

Overdracht

Referentienummer
00438
Vraagprijs
€ 819.000,- k.k.
Servicekosten
€ 160,-
Status
Nieuw in verkoop
Aanvaarding
In overleg
Aangeboden sinds
Vrijdag 7 november 2025
Laatste wijziging
Maandag 17 november 2025

Bouw

Type object
Appartement, portiekflat
Soort bouw
Bestaande bouw
Bouwperiode
2023
Isolatievormen
Volledig geïsoleerd

Oppervlaktes en inhoud

Woonoppervlakte
127,6 m²
Woonkameroppervlakte
55,1 m²
Inhoud
444 m³
Oppervlakte overige inpandige ruimten
6,7 m²
Oppervlakte externe bergruimte
5 m²

Indeling

Aantal bouwlagen
1
Aantal kamers
3 (waarvan 2 slaapkamers)
Aantal badkamers
1 (en 1 apart toilet)

Locatie

Ligging
Dichtbij openbaar vervoer
Nabij school

Energieverbruik

Energielabel
A+++

Uitrusting

Warm water
Aardwarmte
Verwarmingssysteem
Vloerverwarming
Warmtepomp
Warmterecuperatiesysteem
Ventilatie methode
Mechanische ventilatie
Badkamervoorzieningen
Dubbele wastafel
Inloopdouche
Vloerverwarming
Heeft kabel-tv
Ja
Glasvezelaansluiting aanwezig
Ja
Heeft schuur/berging
Ja
Heeft ventilatie
Ja

Vereniging van Eigenaren

Ingeschreven bij de KvK
Ja
Jaarlijkse vergadering
Ja
Meer jaren onderhoudsplan
Ja

Kadastrale gegevens

Kadastrale aanduiding
Leiden o 6192
Omvang
Appartementsrecht of complex
Eigendomsituatie
Eigen grond