Onder optie:Veilingmeesterhof 30, 2231 MZ Rijnsburg - Foto
Onder optie
+44

Veilingmeesterhof 30 2231 MZ Rijnsburg € 1.985,- /mnd

  • Appartement
  • 4 kamers
  • 3 slaapkamers
  • 1 badkamers
  • Bouwjaar 2017
  • 92 m² gebruiksoppervlakte
  • A Energielabel A

Beschrijving

LET OP: VERHUUR UITSLUITEND AAN KANDIDATEN IN DE LEEFTIJD VAN 55 +

Leven in luxe en comfort – dat is wonen in Calla. Als onderdeel van woonwijk De Bloem in Rijnsburg biedt Calla met haar 98 full-service huurappartementen een uniek en toekomstbestendig woonconcept.

Appartement
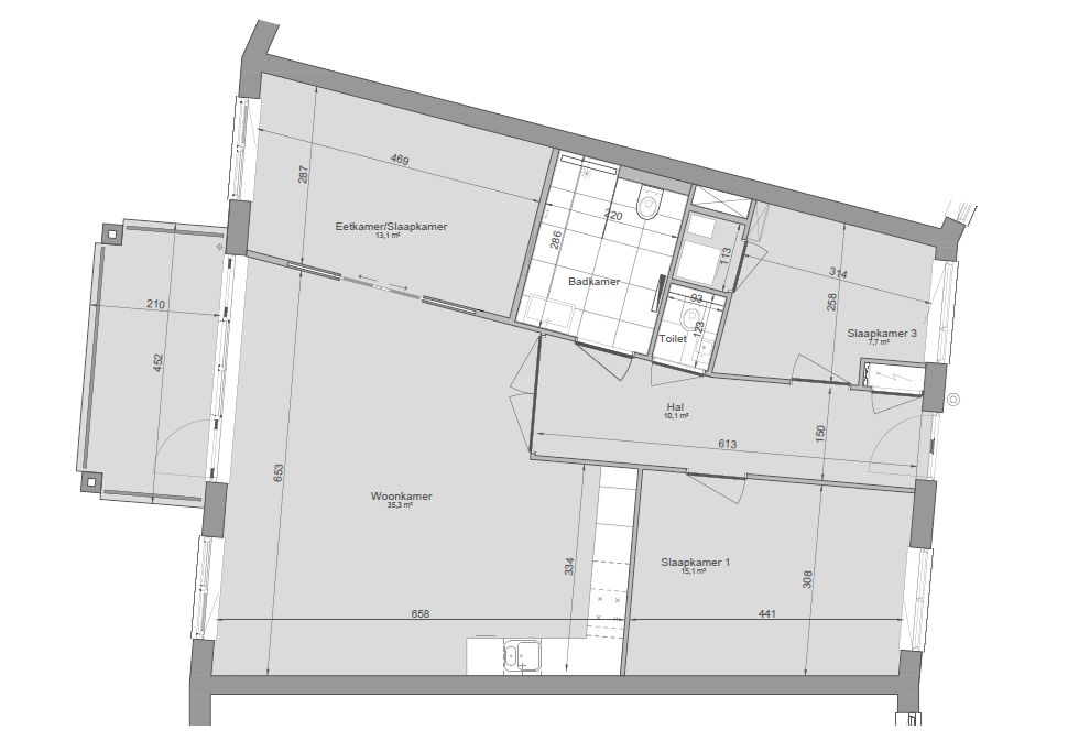
Dit van daglicht vervulde appartement heeft een woonoppervlakte van ruim 91 m² en beschikt over een heerlijk balkon op het zuiden. Dankzij de balkonbeglazing kunt u hier het hele jaar door genieten van de zon en het uitzicht – in de zomer als open buitenruimte en in de winter als een sfeervolle tuinkamer.

De luxe keuken is uitgevoerd in een witte kleur met een donker composiet werkblad en voorzien van moderne inbouwapparatuur: koelkast, aparte vriezer, vaatwasser, inductiekookplaat en combi-oven. De badkamer is modern afgewerkt met witte en warme taupe-tinten en beschikt over een luxe wastafelmeubel, douchewand, draingoot, thermostaatkraan, douche en een tweede toilet. Tevens is er een kluis aanwezig voor uw persoonlijke bezittingen.

Het appartement bevindt zich op de tweede verdieping en beschikt over drie slaapkamers. Via de dubbele deuren bereikt u de ruime woonkamer, terwijl twee schuifdeuren leiden naar een extra kamer met flexibele gebruiksmogelijkheden — ideaal als eetkamer, kantoor of master bedroom.
De woning is voorzien van zonwering en is gestoffeerd.

Let op; Voor de afwerking, stoffering en de balkonbeglazing geldt een overnamesom. Vraag naar de voorwaarden.

Dankzij het duurzame vloerverwarmings- en koelsysteem op basis van een warmtepompinstallatie is de woning volledig gasloos. In de servicekosten is een voorschot op warm water en verwarming inbegrepen.

Bijzonderheden

- Verhuur aan huurders met een minimale leeftijd van 55 jaar;
- Toegang tot diverse faciliteiten;
- Parkeren in de parkeergarage onder het complex is mogelijk. De huur van een parkeerplaats bedraagt € 102,- per maand, exclusief servicekosten (€ 11,- per
maand) prijspeil 2025;
- Huisdieren zijn beperkt toegestaan.
- Let op: de balkonbeglazing is op de foto’s niet zichtbaar, maar is aanwezig.

Calla kent een aantal bijzondere faciliteiten die door alle huurders kunnen worden gebruikt.

Binnentuin
Op de eerste verdieping – entree – is de ‘binnentuin’ gelegen. Hier treft u een koffiecorner en gezellige huiskamers waar u met uw medebewoners kunt bijkletsen onder het genot van een kopje koffie. U kunt een krantje lezen of een spelletje spelen. Daarnaast zijn in de binnentuin de volgende faciliteiten aanwezig:
- Schoonheidsspecialiste
- Kapster
- Pedicure
- Wasserette
- Postboxen
- Twee spreekkamers
- Receptiebalie
- Twee logeerkamers die gehuurd kunnen worden voor bezoekers
- Openbare toiletgroepen

Kookstudio
Op de tweede verdieping is de kookstudio gelegen. Hier kunt u, samen met uw medebewoners, een maaltijd koken, biljarten, een film kijken in de huisbioscoop of genieten op het riante zonneterras. De kookstudio kan ook worden gereserveerd voor bijvoorbeeld een verjaardag van een bewoner van het complex. De kosten voor de huur van de ruimte zijn reeds inbegrepen.

Wellness
Op de begane grond van het complex is de Wellness gelegen. Deze bestaat uit een luxe afgewerkt zwembad, fitness, sauna en Turks stoombad. Deze faciliteiten zijn te gebruiken door alle bewoners van woonwijk De Bloem.

Parkeergarage
Onder het complex is de centrale parkeergarage gelegen die parkeren aan het oog onttrekt. Via de toegangspoort, die op kentekenherkenning werkt, betreedt u de garage waar u een eigen parkeerplaats huurt. Tevens is in de parkeergarage voor iedere woning een fietsenberging gelegen en is er een gemeenschappelijke fietsenberging.

Huurvoorwaarden
De appartementen in Calla kunnen slechts worden verhuurd aan huurders met een minimale leeftijd van 55 jaar. Het is daarnaast niet gewenst dat er thuiswonende kinderen meeverhuizen.

Wilt u meer informatie over Calla? Neem dan contact op met De Raad Woonmakelaars via 071-4051500 of welkom@drwm.nl.

Kaart

Kenmerken

Overdracht

Referentienummer
00428
Huurprijs
€ 1.985,- per maand
Borg
€ 2.335,-
Servicekosten
€ 350,- per maand
Status
Onder optie
Aanvaarding
In overleg
Aangeboden sinds
Vrijdag 7 november 2025
Laatste wijziging
Dinsdag 30 december 2025

Bouw

Type object
Appartement, tussenverdieping
Woonlaag
2e woonlaag
Soort bouw
Bestaande bouw
Toegankelijkheid
Mindervaliden
Senioren
Bouwperiode
2017

Oppervlaktes en inhoud

Woonoppervlakte
92 m²
Inhoud
252 m³
Oppervlakte externe bergruimte
5 m²

Indeling

Aantal bouwlagen
1
Aantal kamers
4 (waarvan 3 slaapkamers)
Aantal badkamers
1 (en 1 apart toilet)

Energieverbruik

Energielabel
A

Uitrusting

Badkamervoorzieningen
Douche
Toilet
Heeft een balkon
Ja
Glasvezelaansluiting aanwezig
Ja
Heeft domotica
Ja
Heeft schuur/berging
Ja