Onder optie:Veilingmeesterhof 23, 2231 MZ Rijnsburg - Foto
Onder optie
+25

Veilingmeesterhof 23 2231 MZ Rijnsburg € 1.795,- /mnd

  • Appartement
  • 3 kamers
  • 2 slaapkamers
  • 1 badkamers
  • Bouwjaar 2018
  • 89 m² gebruiksoppervlakte
  • A Energielabel A

Beschrijving

LET OP: VERHUUR UITSLUITEND AAN KANDIDATEN IN DE LEEFTIJD VAN 55 +

Leven in luxe en comfort, dat is wonen in Calla. Als onderdeel van woonwijk De Bloem in Rijnsburg biedt appartementencomplex Calla met haar luxe full-service woningen een uniek concept voor de 55-plusser! Wilt u comfortabel wonen met diverse faciliteiten op locatie? Dan vindt u in Calla alles waar u naar op zoek bent!

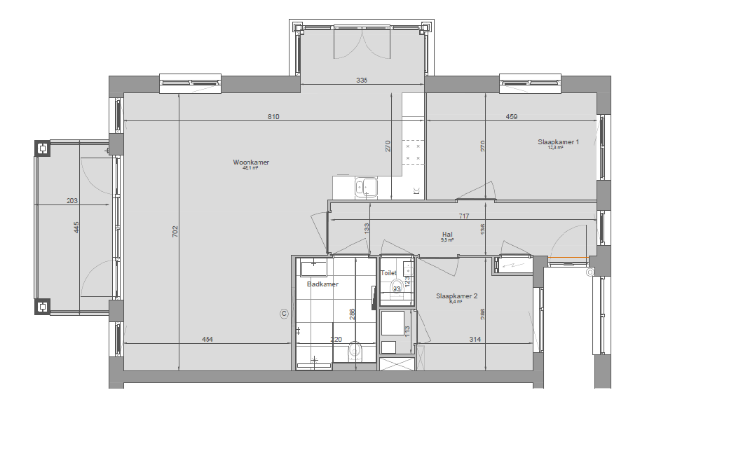
Dit door daglicht rijkelijk verlichte appartement heeft een woonoppervlakte van circa 89 m² en beschikt over een balkon op het westen. Daarnaast is het appartement voorzien van een Frans balkon in de keuken, wat zorgt voor extra lichtinval en een aangename verbinding met buiten.

De luxe keuken is uitgevoerd in een witte kleurstelling met een donker composiet werkblad en is voorzien van moderne inbouwapparatuur, waaronder een koelkast, aparte vriezer, vaatwasser, inductiekookplaat en combi-oven.

Het appartement is gelegen op de tweede verdieping en beschikt over twee slaapkamers. Bij binnenkomst bevindt zich aan de linkerzijde de eerste slaapkamer. Aan de rechterzijde treft u de tweede slaapkamer, waarin tevens een wasruimte aanwezig is en een kluis voor het veilig opbergen van persoonlijke bezittingen. Boven deze ruimte bevindt zich een vliering, ideaal voor extra opbergruimte, welke bereikbaar is via een vlizotrap.

Verderop in de hal bevinden zich de toiletruimte en de badkamer. De badkamer is modern afgewerkt in witte en warme taupe-tinten en beschikt over een luxe wastafelmeubel, douchewand, draingoot, thermostaatkraan, douche en een tweede toilet.

Het appartement is voorzien van stoffering en diverse roerende zaken die achterblijven. Let op: voor de stoffering en de achterblijvende zaken geldt een overnamesom. Informeer naar de voorwaarden.

Dankzij het duurzame vloerverwarmings- en koelsysteem, op basis van een warmtepompinstallatie, is de woning volledig gasloos. In de servicekosten is een voorschot voor warm water en verwarming inbegrepen.

• Verhuur aan huurders met een minimale leeftijd van 55 jaar;
• Toegang tot diverse faciliteiten;
• Parkeren in de parkeergarage onder het complex is mogelijk. De huur van een parkeerplaats bedraagt € 105,30 per maand, exclusief servicekosten (€ 11,36 per maand), prijspeil 2026;
• Huisdieren zijn beperkt toegestaan.

Calla kent een aantal bijzondere faciliteiten die door alle huurders kunnen worden gebruikt.

Binnentuin
Op de eerste verdieping – entree – is de ‘binnentuin’ gelegen. Hier treft u een koffiecorner en gezellige huiskamers waar u met uw medebewoners kunt bijkletsen onder het genot van een kopje koffie. U kunt een krantje lezen of een spelletje spelen. Daarnaast zijn in de binnentuin de volgende faciliteiten aanwezig:
- Schoonheidsspecialiste
- Kapster
- Pedicure
- Wasserette
- Postboxen
- Twee spreekkamers
- Receptiebalie
- Twee logeerkamers die gehuurd kunnen worden voor bezoekers
- Openbare toiletgroepen

Kookstudio
Op de tweede verdieping is de kookstudio gelegen. Hier kunt u, samen met uw medebewoners, een maaltijd koken, biljarten, een film kijken in de huisbioscoop of genieten op het riante zonneterras. De kookstudio kan ook worden gereserveerd voor bijvoorbeeld een verjaardag van een bewoner van het complex. De kosten voor de huur van de ruimte zijn reeds inbegrepen.

Wellness
Op de begane grond van het complex is de Wellness gelegen. Deze bestaat uit een luxe afgewerkt zwembad, fitness, sauna en Turks stoombad. Deze faciliteiten zijn te gebruiken door alle bewoners van woonwijk De Bloem.

Parkeergarage
Onder het complex is de centrale parkeergarage gelegen die parkeren aan het oog onttrekt. Via de toegangspoort, die op kentekenherkenning werkt, betreedt u de garage waar u een eigen parkeerplaats huurt. Tevens is in de parkeergarage voor iedere woning een fietsenberging gelegen en is er een gemeenschappelijke fietsenberging.

Huurvoorwaarden
De appartementen in Calla kunnen slechts worden verhuurd aan huurders met een minimale leeftijd van 55 jaar. Het is daarnaast niet gewenst dat er thuiswonende kinderen meeverhuizen.

Wilt u meer informatie over Calla? Neem dan contact op met De Raad Woonmakelaars via 071-4051500 of welkom@drwm.nl.

Kaart

Kenmerken

Overdracht

Referentienummer
00462
Huurprijs
€ 1.795,- per maand
Borg
€ 2.234,-
Servicekosten
€ 439,- per maand
Status
Onder optie
Aanvaarding
In overleg
Aangeboden sinds
Donderdag 15 januari 2026
Laatste wijziging
Vrijdag 6 februari 2026

Bouw

Type object
Appartement, bovenwoning
Woonlaag
2e woonlaag
Soort bouw
Bestaande bouw
Bouwperiode
2018

Oppervlaktes en inhoud

Woonoppervlakte
89 m²
Inhoud
398 m³
Oppervlakte overige inpandige ruimten
31,6 m²
Oppervlakte externe bergruimte
5 m²
Oppervlakte gebouwgebonden buitenruimte
8,6 m²

Indeling

Aantal bouwlagen
1
Aantal kamers
3 (waarvan 2 slaapkamers)
Aantal badkamers
1 (en 1 apart toilet)

Energieverbruik

Energielabel
A

Uitrusting

Warm water
Aardwarmte
Verwarmingssysteem
Vloerverwarming
Warmtepomp
Badkamervoorzieningen
Inloopdouche
Toilet
Wastafel
Heeft een balkon
Ja
Heeft schuur/berging
Ja