Verhuurd:De Klok 412, 2231 DW Rijnsburg - Foto
Verhuurd
+33

De Klok 412 2231 DW Rijnsburg

  • Appartement
  • 4 kamers
  • 3 slaapkamers
  • 1 badkamers
  • Bouwjaar 2017
  • 96 m² gebruiksoppervlakte

Beschrijving

LET OP: VERHUUR UITSLUITEND VANAF 55 JAAR EN OUDER

Leven in luxe en comfort, dat is wonen in Calla. Als onderdeel van woonwijk De Bloem in Rijnsburg biedt appartementencomplex Calla met haar luxe full-service woningen een uniek concept voor de 55-plusser! Wilt u comfortabel wonen met diverse faciliteiten op locatie? Dan vindt u in Calla alles waar u naar op zoek bent!

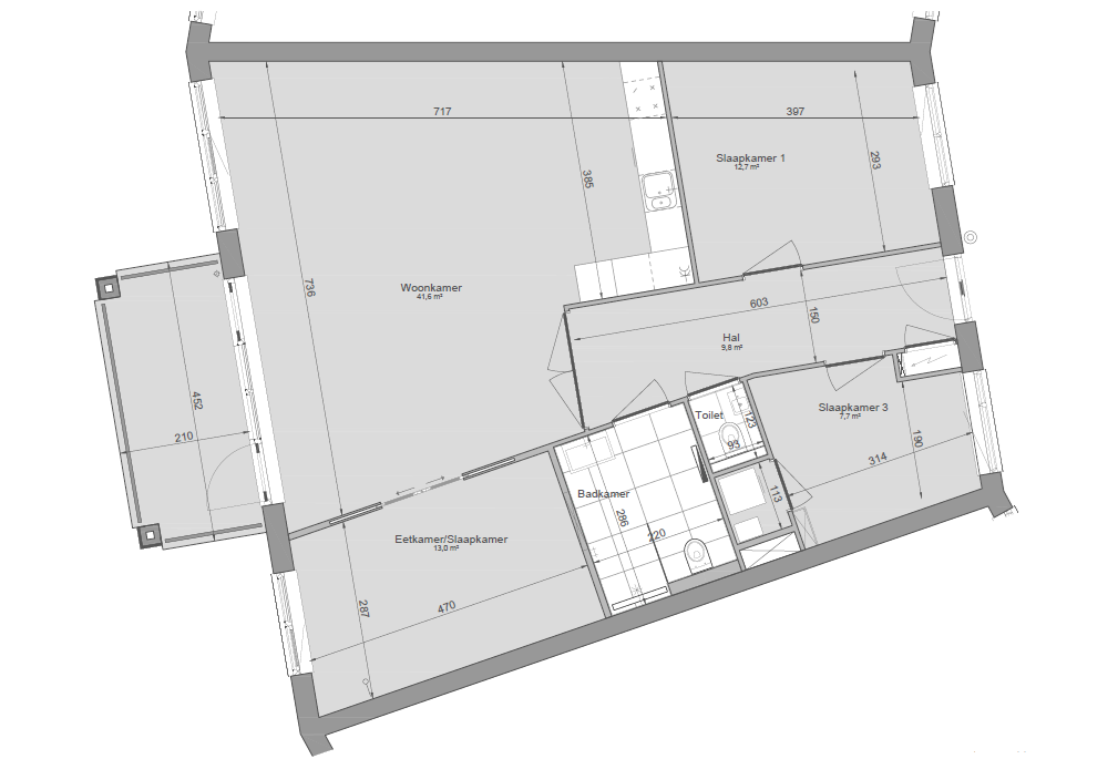
Dit 4-kamer appartement heeft een woonoppervlakte van ca. 96 m2. De woning is uitgevoerd met een luxe keuken voorzien van een composiet werkblad, een koelkast, vriezer, vaatwasser, inductie kookplaat en combimagnetron. Ook de badkamer is compleet. Een luxe, sfeervolle ruimte afgewerkt met tegelwerk in warme taupe-en wit tinten. De badkamer is voorzien van een wastafel, spiegel inclusief verlichting, ruime inloopdouche met draingoot, handdoekradiator en (tweede) toilet.

De woonkamer en eetkamer kunnen gescheiden worden door het sluiten van de sfeervolle en-suite deuren. Er is ook voldoende ruimte in de woonkamer om deze extra kamer te gebruiken als kantoor of atelier. Het balkon aan de voorzijde is te bereiken vanuit de woonkamer en is georiënteerd op het noordoosten.

Het appartement beschikt verder over twee slaapkamers. Bij binnenkomst treft u aan de linkerkant de eerste slaapkamer. In deze ruimte heeft u tevens een wasruimte. Aan de rechterkant bevindt zich een tweede slaapkamer.

De woning is volledig uitgevoerd met een duurzaam vloerverwarming- en koelingssysteem wat werkt op een warmtepompinstallatie en is dus volledig gasloos!

Bijzonderheden:
- Verhuur aan huurders met een minimale leeftijd van 55 jaar;
- Toegang tot diverse faciliteiten;
- Parkeren in de parkeergarage onder het complex is mogelijk. De huur van een parkeerplaats bedraagt € 102,- per maand, exclusief
servicekosten (€ 11,- per maand) prijspeil 2025;
- Huisdieren zijn beperkt toegestaan.

Calla kent een aantal bijzondere faciliteiten die door alle huurders kunnen worden gebruikt.

Binnentuin
Op de eerste verdieping (entree) is de ‘’Binnentuin’’ gelegen. Hier treft u een koffiecorner en gezellige huiskamers waar u met uw medebewoners kunt bijkletsen, een krantje kunt lezen of spelletje kunt spelen. Daarnaast zijn op de binnentuin de volgende faciliteiten aanwezig:
- Schoonheidsspecialiste
- Kapster
- (Medisch) Pedicure
- Wasserette
- Spreekkamers (2x)
- Receptiebalie
- Logeerkamers (2 stuks)

Kookstudio
Op de tweede verdieping is De Kookstudio gelegen. Hier kunt u, samen met uw medebewoners, een maaltijd koken, biljarten, film kijken in de huisbioscoop of genieten op het riante zonneterras. De kookstudio kan ook worden gereserveerd voor bijvoorbeeld een verjaardag van bewoners van het gebouw.

Wellness
Op de begane grond van het gebouw is de Wellness gelegen. Deze bestaat uit een luxe afgewerkt zwembad, fitness, sauna en Turks stoombad. Deze faciliteiten zijn te gebruiken door alle bewoners van woonwijk De Bloem.

Parkeergarage
Onder het gebouw is de centrale parkeergarage gelegen die parkeren aan het oog onttrekt. Via de toegangspoort, welke op kentekenherkenning werkt, betreedt u de garage waar u een eigen parkeerplaats huurt, indien u in het bezit bent van een auto. Tevens is voor iedere woning een berging in de kelder gereserveerd en is er een gemeenschappelijke fietsenberging.

Wilt u meer informatie over Calla? Neem dan contact op met De Raad Woonmakelaars via 071-4051500 of welkom@drwm.nl.

Kaart

Kenmerken

Overdracht

Referentienummer
00429
Huurprijs
€ 1.525,- per maand
Borg
€ 1.901,-
Servicekosten
€ 376,- per maand
Status
Verhuurd
Aanvaarding
In overleg
Aangeboden sinds
Woensdag 8 oktober 2025
Laatste wijziging
Vrijdag 23 januari 2026

Bouw

Type object
Appartement, galerijflat, serviceflat
Woonlaag
1e woonlaag
Soort bouw
Bestaande bouw
Toegankelijkheid
Mindervaliden
Senioren
Bouwperiode
2017
Dakbedekking
Dakpannen
Type dak
Zadeldak
Isolatievormen
Dubbel glas
Volledig geïsoleerd

Oppervlaktes en inhoud

Woonoppervlakte
96 m²
Inhoud
269 m³
Oppervlakte externe bergruimte
6 m²
Oppervlakte gebouwgebonden buitenruimte
7 m²

Indeling

Aantal bouwlagen
1
Aantal kamers
4 (waarvan 3 slaapkamers)
Aantal badkamers
1 (en 1 apart toilet)

Locatie

Ligging
In woonwijk

Uitrusting

Verwarmingssysteem
Vloerverwarming
Warmtepomp
Ventilatie methode
Mechanische ventilatie
Badkamervoorzieningen
Douche
Toilet
Wastafel
Heeft een balkon
Ja
Heeft kabel-tv
Ja
Heeft een lift
Ja
Glasvezelaansluiting aanwezig
Ja
Tuin aanwezig
Ja
Heeft een garage
Ja
Heeft een sauna
Ja
Heeft zonwering
Ja
Heeft een zwembad
Ja
Heeft ventilatie
Ja