Verhuurd:De Klok 406, 2231 DW Rijnsburg - Foto
Verhuurd
+16

De Klok 406 2231 DW Rijnsburg

  • Appartement
  • 3 kamers
  • 1 slaapkamer(s)
  • Bouwjaar 2017
  • 80 m² gebruiksoppervlakte
  • A Energielabel A

Beschrijving

LET OP: VERHUUR UITSLUITEND AAN KANDIDATEN IN DE LEEFTIJD VAN 55 +

Leven in luxe en comfort, dat is wonen in Calla. Als onderdeel van woonwijk De Bloem in Rijnsburg biedt appartementencomplex Calla met haar luxe full-service woningen een uniek concept! Bent u 55+ en wilt u comfortabel wonen met diverse faciliteiten op locatie? Dan vindt u in Calla alles waar u naar op zoek bent!

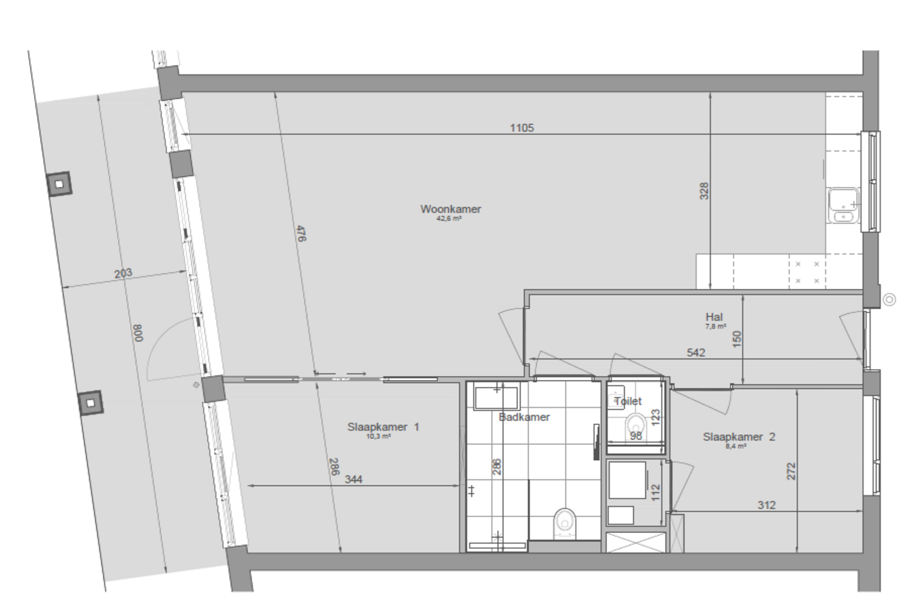
Dit gemeubileerde 3-kamer appartement heeft een woonoppervlakte van ca. 80 m2. De woning is uitgevoerd met een luxe keuken voorzien van koelkast, vriezer, vaatwasser, inductiekookplaat en combimagnetron. Ook de badkamer is compleet. Een luxe, sfeervolle ruimte afgewerkt met tegelwerk in warme taupe-en wit tinten. De badkamer is voorzien van een wastafel, spiegel inclusief verlichting, douchewand, draingoot, thermostaatkraan, douche, elektrische handdoekradiator en (tweede) toilet. Het toilet in de badkamer kan desgewenst op de door u gewenste hoogte worden gesteld.

De slaapkamer is aan de woonkamer gelegen. De slaapkamer kan afgescheiden worden van de woonkamer door sfeervolle ensuite deuren. Aan de voorzijde van de woning bevindt zich nog een tweede kamer met een wasruimte waar ook een kluis aanwezig is. Het terras is te bereiken vanuit de woonkamer, georiënteerd op het noordoosten.

De woning is volledig gasloos en voorzien van vloerverwarming- en koeling. Hierdoor heeft u het gehele jaar door een aangenaam klimaat in de woning.

Volledig gemeubileerd wonen
De woning wordt volledig gemeubileerd verhuurd en is van alle gemakken voorzien. Dit betekent dat u meteen kunt intrekken zonder zich zorgen te maken over de inrichting. De woning is stijlvol ingericht met moderne meubels en accessoires die niet alleen comfort bieden, maar ook een luxe uitstraling geven. Van keuken tot slaapkamer, elk detail is zorgvuldig gekozen om uw woonervaring te optimaliseren.

Bijzonderheden:
- Verhuur aan huurders met een minimale leeftijd van 55 jaar;
- Het appartement wordt volledig gemeubileerd verhuurd; inclusief het meubilair en accessoires;
- Toegang tot diverse (bijzondere) faciliteiten;
- Huisdieren zijn niet toegestaan.

Calla kent een aantal bijzondere faciliteiten welke voor alle huurders ter beschikking staan.

Binnentuin
Op de eerste verdieping (entree) is de ‘’Binnentuin’’ gelegen. Hier treft u een koffiecorner en gezellige huiskamers waar u met uw medebewoners kunt bijkletsen, een krantje kunt lezen of spelletje kunt spelen. Daarnaast zijn op de binnentuin de volgende faciliteiten aanwezig:
- Schoonheidsspecialiste
- Kapster
- (Medisch) Pedicure
- Wasserette
- Spreekkamers (2x)
- Huismeester
- Logeerkamers (2 stuks)

Kookstudio
Op de tweede verdieping is De Kookstudio gelegen. Hier kunt u, samen met uw medebewoners, een maaltijd koken, biljarten, film kijken in de huisbioscoop of genieten op het riante zonneterras. De kookstudio kan ook worden gereserveerd voor bijvoorbeeld een verjaardag van bewoners van het gebouw.

Wellness
Op de begane grond van het gebouw is de Wellness gelegen. Deze bestaat uit een luxe afgewerkt zwembad, fitness, sauna en Turks stoombad. Deze faciliteiten zijn te gebruiken door alle bewoners van woonwijk De Bloem.

Parkeren
Onder het gebouw bevindt zich de centrale parkeergarage. Via de toegangspoort, welke op kentekenherkenning werkt, betreedt u de garage waar u een eigen parkeerplaats huurt (indien u in het bezit bent van een auto). Tevens is er een gemeenschappelijke fietsenberging.

Huurvoorwaarden
De appartementen in Calla kunnen slechts worden verhuurd aan huurders met een minimale leeftijd van 55. Het is daarnaast niet gewenst dat er thuiswonende kinderen meeverhuizen.

Servicekosten
De servicekosten omvat o.a. een voorschot voor warm water en verwarming, het dagelijks onderhoud van het gebouw, de wellness en fitness.

Wilt u meer informatie over Calla? Neem dan contact op met De Raad Woonmakelaars via 071-4051500 of welkom@drwm.nl.

Kaart

Kenmerken

Overdracht

Referentienummer
00232
Huurprijs
€ 1.740,- per maand (gemeubileerd)
Borg
€ 2.440,-
Servicekosten
€ 350,- per maand
Status
Verhuurd
Aanvaarding
In overleg
Aangeboden sinds
Maandag 16 juni 2025
Laatste wijziging
Maandag 10 november 2025

Bouw

Type object
Appartement, benedenwoning, serviceflat
Woonlaag
1e woonlaag
Soort bouw
Bestaande bouw
Toegankelijkheid
Mindervaliden
Senioren
Bouwperiode
2017
Dakbedekking
Dakpannen
Type dak
Zadeldak
Isolatievormen
Dakisolatie
Dubbel glas
Muurisolatie
Vloerisolatie
Volledig geïsoleerd

Oppervlaktes en inhoud

Woonoppervlakte
80 m²
Inhoud
224 m³
Oppervlakte externe bergruimte
5 m²
Oppervlakte gebouwgebonden buitenruimte
10 m²

Indeling

Aantal bouwlagen
1
Aantal kamers
3 (waarvan 1 slaapkamer)
Aantal toiletten
1

Locatie

Ligging
In woonwijk

Tuin

Type
Zonneterras
Hoofdtuin
Ja
Oriëntering
Noord-oost
Staat
Normaal

Energieverbruik

Energielabel
A

Uitrusting

Badkamervoorzieningen
Douche
Toilet
Wastafel
Tuin aanwezig
Ja
Heeft een garage
Ja