Nieuw in verhuur:Perzikweg 82, 2321 DG Leiden - Foto
Nieuw in verhuur
+32

Perzikweg 82 2321 DG Leiden € 2.300,- /mnd

  • Appartement
  • 3 kamers
  • 2 slaapkamers
  • 1 badkamers
  • Bouwjaar 2023
  • 121 m² gebruiksoppervlakte
  • A+++ Energielabel A+++

Beschrijving

Licht en modern 3-kamer appartement in De Ananas

Dit ruime 3-kamer appartement van circa 121 m² aan de Perzikweg 82, gelegen op de zesde verdieping van het moderne complex De Ananas, biedt een comfortabele en energiezuinige woonervaring. Het appartement beschikt over een prettig balkon en grote raampartijen, waardoor de woonruimtes licht en ruimtelijk aanvoelen.

Centrale ligging met alle voorzieningen dichtbij

Het appartement ligt op korte afstand van het centrum van Leiden, met winkels, horeca en openbaar vervoer binnen handbereik. Vanuit de zesde verdieping heb je een prettig uitzicht en ervaar je veel privacy. De entree van het complex is verzorgd en afgewerkt met kwalitatieve materialen, wat bij binnenkomst direct een nette indruk geeft.

Het appartement wordt ongestoffeerd opgeleverd, waardoor je het volledig naar eigen wens kunt inrichten en vormgeven.

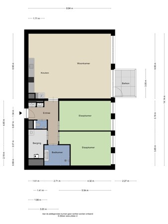
Indeling

De hal biedt toegang tot alle vertrekken. De lichte woonkamer met open keuken vormt het hart van het appartement.
De keuken is functioneel ingericht en zorgt voor een prettige interactie met de woonkamer.

Er zijn twee ruime slaapkamers, geschikt als slaapruimte, werkplek of logeerkamer.
De volledig afgewerkte badkamer beschikt over een inloopdouche en dubbele wastafel. Het separate toilet maakt de indeling compleet.
Het balkon biedt een fijne plek om buiten te zitten en te ontspannen.

Bijzonderheden

Het appartement bevindt zich aan de rand van het stadscentrum van Leiden, met winkels, horeca en openbaar vervoer op korte afstand. Door de hoekligging profiteert de woning van extra ramen, waardoor de ruimtes licht en luchtig aanvoelen.

De gemeenschappelijke entree is verzorgd en afgewerkt met kwalitatieve materialen, wat bij binnenkomst direct een nette indruk geeft. Verder is er een goede onderhouden binnentuin in het complex aanwezig.

- Bouwjaar: 2023
- Vloerverwarming én -koeling
- Ongestoffeerd opgeleverd
- Eigen berging en twee fietsplekken in gemeenschappelijke fietsenberging;
- (Gezamenlijk) Bruto jaarinkomen dient min. € 82.880,- te bedragen;
- De woning is niet geschikt voor woningdelers en garantstellers;
- Begroting servicekosten ca. € 47,- p/m;
- Parkeerplaats (optioneel) € 98.13 p/m;
- Bijdrage verwarming en koeling ca. € 145,-p/m.* Deze bijdrage is exclusief het verbruik.
(* is bij de huurprijs van € 2.300,- inbegrepen).
- DISCLAIMER: De foto's in de advertentie zijn van een soortgelijk appartement en kunnen afwijken van de daadwerkelijke afwerking in de woning.

Wil je meer weten of wil je dit appartement bezichtigen? Dan kan je contact met ons opnemen!

Kaart

Kenmerken

Overdracht

Referentienummer
00434
Huurprijs
€ 2.300,- per maand
Borg
€ 2.347,-
Servicekosten
€ 47,- per maand
Inrichting
Niet gestoffeerd
Inrichting
Niet gemeubileerd
Status
Nieuw in verhuur
Aanvaarding
In overleg
Aangeboden sinds
Donderdag 26 februari 2026

Bouw

Type object
Appartement, galerijflat
Woonlaag
6e woonlaag
Soort bouw
Bestaande bouw
Bouwperiode
2023
Isolatievormen
Volledig geïsoleerd

Oppervlaktes en inhoud

Woonoppervlakte
121 m²
Woonkameroppervlakte
61,1 m²
Inhoud
315 m³
Oppervlakte externe bergruimte
6 m²
Balkonoppervlakte
7,4 m²

Indeling

Aantal bouwlagen
1
Aantal kamers
3 (waarvan 2 slaapkamers)
Aantal badkamers
1

Energieverbruik

Energielabel
A+++

Uitrusting

Warm water
Aardwarmte
Verwarmingssysteem
Vloerverwarming
Warmtepomp
Warmterecuperatiesysteem
Ventilatie methode
Balansventilatie
Badkamervoorzieningen
Douche
Dubbele wastafel
Vloerverwarming
Heeft een balkon
Ja
Heeft schuur/berging
Ja