Onder optie:Mangoweg 341, 2321 HZ Leiden - Foto
Onder optie
+19

Mangoweg 341 2321 HZ Leiden € 2.525,- /mnd

  • Appartement
  • 3 kamers
  • 2 slaapkamers
  • 1 badkamer
  • Bouwjaar 2023
  • 97 m² gebruiksoppervlakte
  • Gemeubileerd
  • A+++ Energielabel A+++

Beschrijving

** Volledig gemeubileerde woning in Leiden **

Dit leuke 3-kamerappartement is gelegen op een zeer gunstige locatie in Leiden. Dit is perfect geschikt voor een single of stel dat op zoek is naar een volledig gemeubileerd appartement om direct in te trekken

Je vindt alle voorzieningen die je nodig hebt op loop- en fietsafstand, zoals supermarkten, restaurants, cafés en winkels. Het bruisende historische centrum van Leiden is binnen 5 minuten fietsen te bereiken. Het strand, Polderpark Cronesteyn en het Groene Hart liggen in de nabije omgeving.

Tegenover het gebouw 'De Ananas' vindt u een bus- en treinstation. De snelweg is gemakkelijk bereikbaar met de auto.

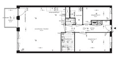
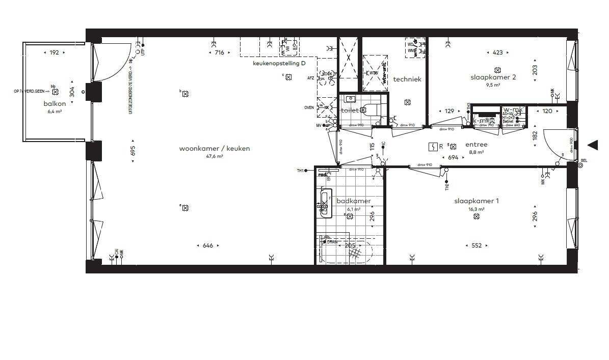
Indeling:
Op de begane grond kun je met de lift of met de trap naar de tweede etage. De hal geeft toegang tot alle vertrekken van het appartement. De woonkamer is voorzien van een ruime zithoek en een grote eettafel. Vanaf hier heb je toegang tot het balkon.

De moderne keuken is voorzien van alle inbouwapparatuur die je nodig hebt, zoals een combi-oven, vaatwasser, koelkast, vriezer en een elektrisch fornuis met afzuigkap. Verder zijn er diverse keukenbenodigdheden aanwezig zoals een koffiezetapparaat en waterkoker.

De badkamer is uitgerust met een wastafel en een inloopdouche. De ouderslaapkamer heeft een tweepersoonsbed en een grote kast. De tweede slaapkamer is uitgerust met een stapelbed. Een apart toilet is aanwezig.

Het appartement is gebouwd in 2023 en volledig gasloos uitgevoerd. Met energielabel A+++ is het bijzonder energiezuinig. De woning is voorzien van vloerverwarming én -koeling, wat bijdraagt aan een aangenaam binnenklimaat gedurende alle seizoenen.

Handdoeken en beddengoed zijn inbegrepen.

Huisdieren zijn niet toegestaan.

Faciliteiten
Er een enorme gemeenschappelijke binnentuin, een groene oase waar je samen kunt komen met andere bewoners en de kinderen zorgeloos kunnen spelen en dat midden in de stad!

Opmerkingen:
- Luxe badkamer met dubbele wastafel en douche;
- Aparte toiletruimte;
- Luxe keuken en voorzien van inbouwapparatuur;
- 2 slaapkamers;
- Gasloos met vloerverwarming en -koeling;
- Eigen berging en twee fietsplekken in gemeenschappelijke fietsenberging;
- (Gezamenlijk) Bruto jaarinkomen dient min. €91.000,- te bedragen;
- De woning is niet geschikt voor woningdelers en garantstellers;
- Per direct beschikbaar;
- Begroting servicekosten ca. € 38,- p/m;
- Parkeerplaats (optioneel) € 95,- p/m.

Interesse?
Neem contact op met ons kantoor voor meer informatie of het plannen van een bezichtiging.

Kaart

Kenmerken

Overdracht

Referentienummer
00458
Huurprijs
€ 2.525,- per maand (gemeubileerd, gestoffeerd)
Borg
€ 5.050,-
Servicekosten
€ 38,- per maand
Inrichting
Ja
Inrichting
Gemeubileerd
Status
Onder optie
Aanvaarding
In overleg
Aangeboden sinds
Maandag 1 december 2025
Laatste wijziging
Maandag 16 maart 2026

Bouw

Type object
Appartement, portiekflat
Woonlaag
2e woonlaag
Soort bouw
Bestaande bouw
Bouwperiode
2023
Isolatievormen
Volledig geïsoleerd

Oppervlaktes en inhoud

Woonoppervlakte
97 m²
Woonkameroppervlakte
47,6 m²
Inhoud
253 m³
Oppervlakte gebouwgebonden buitenruimte
6 m²
Balkonoppervlakte
6,1 m²

Indeling

Aantal bouwlagen
1
Aantal kamers
3 (waarvan 2 slaapkamers)
Aantal badkamers
1

Locatie

Ligging
Dichtbij openbaar vervoer
In woonwijk
Nabij school

Energieverbruik

Energielabel
A+++

Uitrusting

Warm water
Aardwarmte
Verwarmingssysteem
Vloerverwarming
Warmtepomp
Warmterecuperatiesysteem
Ventilatie methode
Mechanische ventilatie
Badkamervoorzieningen
Inloopdouche
Toilet
Wastafel
Heeft een balkon
Ja
Heeft kabel-tv
Ja
Heeft een lift
Ja
Glasvezelaansluiting aanwezig
Ja
Tuin aanwezig
Ja
Heeft een garage
Ja
Heeft schuur/berging
Ja
Heeft zonnepanelen
Ja
Heeft ventilatie
Ja