Verhuurd:Mangoweg 339, 2321 HZ Leiden - Foto
Verhuurd
+12

Mangoweg 339 2321 HZ Leiden

  • Appartement
  • 3 kamers
  • 2 slaapkamers
  • Bouwjaar 2023
  • 97 m² gebruiksoppervlakte
  • A+++ Energielabel A+++

Beschrijving

Volledig gemeubileerd 3-kamer appartement in ’De Ananas’, Leiden

Dit lichte en ruime 3-kamer appartement in ’De Ananas’ wordt volledig gemeubileerd verhuurd. De minimale huurperiode is 12 maanden, daarna is het maandelijks opzegbaar.

Alles ligt dichtbij: supermarkten, restaurants, cafés en winkels zijn op loop- of fietsafstand. Het historische centrum van Leiden is in 5 minuten fietsen bereikbaar. Voor openbaar vervoer ligt een bus- en treinstation recht tegenover het gebouw, en met de auto is de snelweg snel bereikbaar.

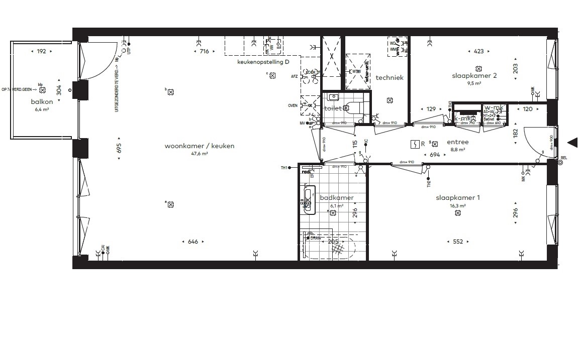
Indeling

Via lift of trap bereikt u de tweede verdieping en tevens de binnentuin van het complex. De hal biedt toegang tot alle vertrekken van het appartement. De woonkamer is licht en ruim, met een comfortabele zithoek en een grote eettafel. Vanuit de woonkamer is het balkon bereikbaar, dat uitzicht biedt op de rustige binnenplaats van het complex.

De moderne keuken is volledig uitgerust met inbouwapparatuur: combi-oven, vaatwasser, koelkast, vriezer en elektrisch fornuis met afzuigkap. De grote slaapkamer beschikt over een tweepersoonsbed en een ruime kast. De tweede slaapkamer kan gebruikt worden als studeer- of werkkamer. De badkamer is voorzien van een wastafel en een inloopdouche, en er is een apart toilet aanwezig.

Bijzonderheden

- Luxe badkamer met dubbele wastafel en douche;
- Aparte toiletruimte;
- Luxe keuken en voorzien van inbouwapparatuur;
- 2 slaapkamers;
- Gasloos met vloerverwarming en -koeling;
- Eigen berging en twee fietsplekken in gemeenschappelijke fietsenberging;
- (Gezamenlijk) Bruto jaarinkomen dient min. €122.400,- te bedragen;
- De woning is niet geschikt voor woningdelers en garantstellers;
- Per direct beschikbaar;
- Begroting servicekosten ca. € 38,- p/m;
- Parkeerplaats (optioneel) € 95,- p/m.

Interesse?
Neem contact op met ons kantoor voor meer informatie of het plannen van een bezichtiging.

Kaart

Kenmerken

Overdracht

Referentienummer
00419
Huurprijs
€ 2.550,- per maand (gemeubileerd, gestoffeerd)
Borg
€ 1.500,-
Servicekosten
€ 38,- per maand
Status
Verhuurd
Aanvaarding
In overleg
Aangeboden sinds
Maandag 22 september 2025
Laatste wijziging
Dinsdag 28 oktober 2025

Bouw

Type object
Appartement, portiekflat
Woonlaag
2e woonlaag
Soort bouw
Bestaande bouw
Toegankelijkheid
Mindervaliden
Senioren
Bouwperiode
2023
Isolatievormen
Volledig geïsoleerd

Oppervlaktes en inhoud

Woonoppervlakte
97 m²
Inhoud
253 m³
Oppervlakte gebouwgebonden buitenruimte
6 m²

Indeling

Aantal bouwlagen
1
Aantal kamers
3 (waarvan 2 slaapkamers)

Locatie

Ligging
In woonwijk

Energieverbruik

Energielabel
A+++

Uitrusting

Warm water
Aardwarmte
Verwarmingssysteem
Vloerverwarming
Warmtepomp
Warmterecuperatiesysteem
Ventilatie methode
Mechanische ventilatie
Badkamervoorzieningen
Inloopdouche
Toilet
Wastafel
Heeft een balkon
Ja
Heeft kabel-tv
Ja
Heeft een lift
Ja
Glasvezelaansluiting aanwezig
Ja
Tuin aanwezig
Ja
Heeft een garage
Ja
Heeft zonnepanelen
Ja
Heeft ventilatie
Ja

Media